您当前的位置:首页 > 产品展示

RTC低噪声离心式铝制屋顶风机

产品名称:RTC低噪声离心式铝制屋顶风机
产品编号:16
产品型号:屋顶通风机系列

本公司凭借多年来专业研发离心通风机的成功经验,吸取了国际同类产品的优点,以欧美技术为基础,人性化的设计,并经过大量的精确计算以及模型风机和实物产品的反复试验,以先进的技术装备制造开发和完善了RTC系列低噪声离心式屋顶排风机。该产品具有新颖、美观、高效节能等特点本系列风机机号按叶轮直径分有300、425、500、575、675、750、900、1000,共8种规格,风量自329m3/h到57200m3/h,最高静压达650Pa。
本公司还可以按不同参数和特定要求,设计开发特种规格的风机,实现与工程所要求参数的最佳匹配,以满足特定工况的要求。
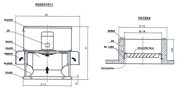
产品特色Products Characteristics
1、风机叶轮:采用CFD流场模拟技术优化设计的“欧达系列”高、低压铝合金叶轮,该叶轮的前盘、后盘、叶片经冲压下料、模压成型等多道工序加工,结构紧凑且具有风量大、噪声低、高效率等特点。
    2、风机配套电机:用防护等级IP54、绝缘等级F级电机,如配绝缘等级为H级,产品可在280℃/45min高温环境下连续运行;另也可配防爆电机、双速电机和变频电机。
    3、机壳:本风机整体结构强度按50m/s极端室外风速的条件进行设计。风机采用铝合金材质,经拉伸、卷边等加工,在保障风机足够强度的前提下,提高了风机外形的美观,减轻了风机的自重,降低了对屋顶基础的强度要求,且抗风能力较好。
    4、风帽:采用铝合金制造,整体拉伸成型,并经卷边处理。专利技术,重量轻,强度高,风阻小。
    5、集流器:采用精密的文丘里管设计,一次成形工艺,使叶轮导流口与进风口充分吻合,有效控制气流组织,符合流体力学的双曲线型文丘里进风口,大幅降低入口噪声,提高风机效率。
    6、固定支架:数控下料、成型,多工位数控冲床加工固定孔,安装方便。
    7、传动装置:本系列风机采用皮带传动,这种传动形式可以根据不同的带轮配置来达到一定的风机转速,能更好地匹配实际工况要求。风机轴经过调质处理和平衡测试,其第一临界转速大于风机最大运行速度的1.3倍,皮带轮选用欧式带轮。
    8、风阀:采用重力自动关闭式或电动驱动启闭式。重力自动关闭式风阀框架材质为热镀锌板,百叶材质为铝合金;电动驱动启闭式风阀叶片采用铝合金保温型百叶制造,防结露,防气流倒灌,尤其适合北方严寒地区使用。排烟、通风二用,可选配排烟防火阀,风机、排烟防火阀均已通过国家消防产品型式试验。
    9、安装维护:电机防护罩采用扣襻固定结构,操作方便,省时省力。
    10、运转平稳:本风机的转动惯量小,平衡品质优,平衡品质达到ISO1940标准的G2.5平衡品质等级水平,整体经过机械运转试验、振动试验和气动性能试验,以保证达到运行平稳、可靠的要求,有效延长风机的使用寿命,降低噪音,减小振动。
注:性能参数表中关于风机转速为:460r/min、560r/min、720r/min、960r/min、1450r/min传动方式可以采用电机直联。
命名规范Denomination criteion
    为了能够清楚完善地描述风机主要信息,下面对风机命名方法作详细解释:

风机选型Choose the right fan model
1、按照对风机的参数要求,查阅本说明书中的性能参数表。当现有机号的风机性能不能满足系统设计参数要求,可以由本公司技术部门对风机作变型设计。本公司愿无偿提供选型技术服务。
2、技术参数说明:
流量Q(m3/h)-风机进口容积流量
压力P(Pa)-风机进口密度=1.2kg/m3状态下的风机压力
在选择风机机号时,应已知风机进口容积流量,并将风机使用条件下所要求的压力Pm换算到密度为1.2 kg/m3时的压力P: P=PmXρ/ρm
式中:P-性能参数表中的压力 
Pm-风机使用条件下所要求的压力 
ρ=1.2kg/m3
ρm-风机使用条件下的密度 
3、本系列风机只限于输送不含固体颗粒(不大于150mg/ m3)的气体。 
4、风机声压级测试:风机入口1.5m处测量。 
性能参数表Technical parameter sheet
如何阅读性能参数表
如下面的表格所示,如果选用风量为16273m3/h,静压为30Pa的风机,其转速为600 r/min,声压级为68dB(A),实际耗功率为1112W,选配电机功率为1.5kW。

Copyright ? 乐玩lewin-乐玩国际风机(集团)有限公司 (绍兴乐玩lewin-乐玩国际风机销售有限公司) 版权所有    浙ICP备20027036号-2        浙公网安备33060402001868